- ПроизводительHarvia
- БрендHarvia
- Единица измеренияшт
- Все характеристики
- Рассчитать примерную стоимость доставки
- Самовывоз сегодня, бесплатно
Оба значения мощности электрокаменки обеспечиваются изменением электрического подключения, PC 165E/200E можно настроить на 16.6 (подключение на 2 группы) или 19.8 кВт
Каменка Harvia Cilindro Pro 165E/200E это впечатляющий источник тепла и пара для домашних саун, однако наибольшую выгоду из ее возможностей могут извлечь, например, коммерческие сауны, отели и компании, занимающиеся жильем.
Cilindro Pro 165E/200E высотой 130 см вмещает 220 кг камней и прочные нагревательные элементы, разработанные для интенсивной эксплуатации. Вместе они гарантируют, что тепла всегда будет достаточно для каждого, вне зависимости от количества пользователей.
Наружный решетчатый корпус изготовлен из нержавеющей стали. Вы можете регулировать характер пара от мягкого и влажного до резкого и сухого, поддавая водой на боковую сторону либо на самый верх каменной колонны. Электрокаменка может оснащаться защитным ограждением HPC5, допускающим ее более близкую установку к стене или в угол сауны. Защитное ограждение также предохраняет поверхность стены от появления пятен от воды и каменной пыли.
Характеристики
| Мощность, кВт | 16.6 \ 19.8 |
| Минимальный объем парильни, м3 | 15 \ 20 |
| Максимальны объем парильни, м3 | 25 \ 30 |
| Минимальная высота парильни, см | 210 |
| Максимальный вес камней, кг | 220 |
| Размеры: ширина, мм | 450 |
| Размеры: высота, мм | 1300 |
| Размеры: глубина, мм | 450 |
| Масса, кг | 28 |
| Предохранители 1 (A) | 3x16 \ 3x20 |
| Предохранители 2 (A) | 3x10 \ 3x10 |
| Соединительный Группа 1 H07RN-F мин. (мм2) | 6x2,5 \ 5x6 |
| Соединительный Группа 2 H07RN-F мин. (мм2) | 5x2,5 \ 5x2,5 |
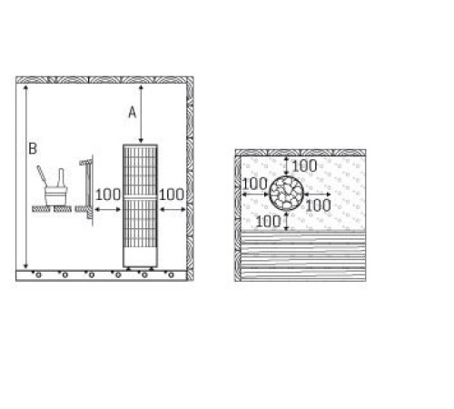
| Безопасное расстояние до стены A, мм | 750 |
| Безопасное расстояние спереди B, мм | 2100 |
Основные характеристики
- БрендHarvia
- Единица измеренияшт
Нет отзывов о данном товаре.
